Capannone in vendita

Leinì, Via Settimo
€ 490.000
2080 Mq 2080 Mq
4 bagni 4 bagni

Capannone in vendita

Leinì, Via Settimo

Descrizione annuncio

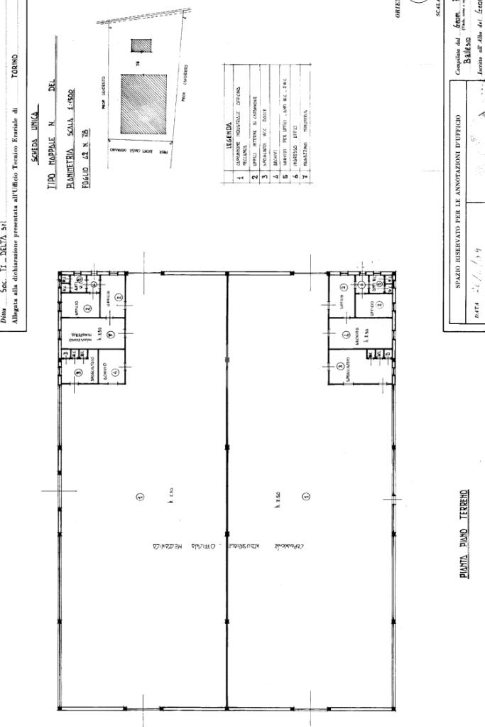
- Leinì - proponiamo in vendita un capannone di 2080 mq situato al piano terra. Costruito nel 1989.

La struttura include quattro bagni, offrendo praticità e funzionalità per il personale e i visitatori. Uno dei punti di forza di questo capannone è la presenza di uffici, ideali per gestire le attività amministrative direttamente sul posto.

L'ampio cortile, libero su quattro lati, facilita le operazioni di carico e scarico, mentre i sei portoni carrai assicurano un accesso agevole per veicoli di diverse dimensioni.

Questa soluzione è perfetta per chi cerca uno spazio versatile e ben organizzato, adatto a diverse tipologie di attività produttive o logistiche. La posizione strategica nel comune di Leinì offre un facile collegamento con le principali vie di comunicazione della zona.

Mostra tutto

Nelle vicinanze

Trasporto pubblico Trasporto pubblico
Agnelli
Agnelli
1,5 Km
Leini' (str. Settimo 129)
Leini' (str. Settimo 129)
1,5 Km
Ricariche auto elettriche Ricariche auto elettriche
Municipio di Leini | EnelX
1,9 Km
Scuole Scuole
Scuola dell'Infanzia "Carlo Collodi"
1,8 Km
Istituto Comprensivo Carlo Casalegno
2,3 Km
Scuola Primaria "Anna Frank"
2,4 Km
Mappanmondo
2,8 Km
Istituto "Giovanni Falcone"
2,9 Km
Farmacia Farmacia
Farmacia
1,7 Km
Il Giglio
2,7 Km
Supermercati Supermercati
Pam
1,8 Km
Eurospin
1,9 Km
Crai
2,1 Km
MD
2,3 Km
Negozi Negozi
Negozi
2,2 Km
Zaia
2,7 Km
Bar Bar
Lai
2,7 Km
Bar Luca e Dario
2,9 Km
Ristoranti Ristoranti
Haru restaurant
1,5 Km
Bistrot Medina
2,1 Km
Seven Village
2,2 Km
Pepe Vino e Cucina
2,3 Km
Pizzeria Fantasy
2,4 Km
Mostra tutto

Caratteristiche

Rif.:
61142687
Piano:
Terra
Posti auto:
10
Condizionamento:
Autonomo
Ascensore:
No
Riscaldamento:
Autonomo
Mostra tutto
Prezzo Prezzo
€ 490.000
Rata mutuo Rata mutuo
€ 2.313 / mese
Proponi il tuo prezzoProponi il tuo prezzo

Classe Energetica

F
F
F
F
F
F
F
F
F
EP invernale del fabbricato:
EP estiva del fabbricato:
Anno di costruzione:
1989
Riscaldamento:
Autonomo
Tipo impianto:
A radiatori
Tipo alimentazione:
GPL

Ti interessa visionare l'immobile?

Fissa un appuntamento  Fissa un appuntamento

Richiedi informazioni

Clicca su Leggi per aprire l'informativa
* Questi campi sono obbligatori

Calcola il tuo mutuo

Semplice e senza impegno
Anticipo

( % )
Mutuo

( % )

pochi semplici passi

inserisci i tuoi dati
Questionario completato
Grazie per aver richiesto un appuntamento senza impegno con un nostro Consulente del Credito e Assicurativo.

Hai inserito correttamente tutti i dati necessari e a breve riceverai una e-mail con un link da convalidare per inviare i tuoi dati.
Affiliato
Servizi Per L'Impresa Srl
Via Raffaello Sanzio, 7/B 10036 Settimo Torinese (TO)

Il nostro staff


  • Pietro Borracci
    Affiliato

  • Paolo Marzola
    Collaboratore

  • Gloria Apruzzese
    Coordinatrice
Via Raffaello Sanzio, 7/B 10036 Settimo Torinese (TO)
Zona: Settimo Torinese-San Mauro Torinese-Leinì-Volpiano-Brandizzo-Gassino-Castiglione
Mostra su mappa
Orari: lunedì al venerdì 08:30 12:30 - 14:30 19:30 sabato 8:30 - 12:30
Affiliato
Servizi Per L'Impresa Srl
Via Raffaello Sanzio, 7/B 10036 Settimo Torinese (TO)

2025 Tecnocasa Franchising S.p.A. - P. IVA 08365160152 - Via Monte Bianco 60/A 20089 Rozzano (MI). Ogni agenzia ha un proprio titolare ed è autonoma. Privacy policy | Policy utilizzo | Cookie policy