Laboratorio in vendita

San Benigno Canavese, Viale Lombardore
€ 155.000
5 locali 5 locali
440 Mq 440 Mq
4 bagni 4 bagni

Laboratorio in vendita

San Benigno Canavese, Viale Lombardore

Descrizione annuncio

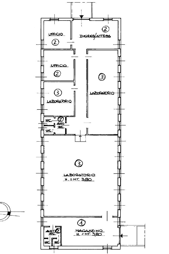
- San Benigno Canavese - proponiamo in vendita laboratorio fronte strada con destinazone ad' uffici, laboratori e magazzino ideale per piccole lavorazioni artigianali, di assemblaggio e lavorazione di beni non ingombranti, tutti gli ambienti sono dotati di doppi servizi e ventilconvettori per il riscaldamento a metano con caldaia di recente installazione, ed il raffrescamento degli ambienti.

L'immobile si estende su una superficie di 440 mq al piano terra, offrendo ampi spazi per diverse attività produttive. La struttura si sviluppa su un'area totale di 1322 mq, garantendo ampio spazio esterno per manovre dei mezzi pesanti.

Un importante punto di forza è la presenza di una rete sprinkler antincendio nella parte dedicata al laboratorio, assicurando un elevato livello di sicurezza per le operazioni quotidiane. Inoltre, l'immobile è dotato di un pozzo esclusivo di proprietà, che rappresenta una risorsa preziosa per l'approvvigionamento idrico.

Questa soluzione è perfetta per chi cerca un ambiente funzionale e ben attrezzato per avviare o espandere la propria attività nel settore artigianale o di assemblaggio.

Mostra tutto

Nelle vicinanze

Trasporto pubblico Trasporto pubblico
Stazione di San Benigno
Stazione di San Benigno
500 m
S. Benigno Canavese
S. Benigno Canavese
530 m
San Benigno (v. Papa Giovanni XXIII)
San Benigno (v. Papa Giovanni XXIII)
530 m
San Benigno (Stazione)
San Benigno (Stazione)
550 m
Scuole Scuole
scuola materna Teresa Belloch
620 m
Scuola dell'Infanzia "Acquerello"
1,7 Km
Scuola Primaria "Gigi Ghirotti"
1,7 Km
Scuola secondaria di primo grado "Dante Alighieri"
2,4 Km
Scuola Primaria "Guglielmo da Volpiano"
2,4 Km
Farmacia Farmacia
Farmacia
640 m
Farmacia Comunale 21
1,8 Km
Supermercati Supermercati
Conad
720 m
Negozi Negozi
pizza Planet
630 m
Bar Bar
Bar
620 m
Ristoranti Ristoranti
Il Mandorlo
820 m
Mostra tutto

Caratteristiche

Rif.:
61163862
Piano:
Terra
Posti auto:
10
Condizionamento:
Autonomo
Ascensore:
No
Riscaldamento:
Autonomo
Mostra tutto
Prezzo Prezzo
€ 155.000
Rata mutuo Rata mutuo
€ 735 / mese
Spese annue Spese annue
€ 0
Proponi il tuo prezzoProponi il tuo prezzo
Immobile valutato con T·Valuta

Altre caratteristiche

Classe Energetica

D
D
D
D
D
D
D
D
D
EP globale non rinnovabile:
259.13 kW h/m² anno
EP invernale del fabbricato:
EP estiva del fabbricato:
Anno di costruzione:
1970
Riscaldamento:
Autonomo
Tipo impianto:
Ad aria
Tipo alimentazione:
Metano

Ti interessa visionare l'immobile?

Fissa un appuntamento  Fissa un appuntamento

Richiedi informazioni

Clicca su Leggi per aprire l'informativa
* Questi campi sono obbligatori

Calcola il tuo mutuo

Semplice e senza impegno
Anticipo

( % )
Mutuo

( % )

pochi semplici passi

inserisci i tuoi dati
Questionario completato
Grazie per aver richiesto un appuntamento senza impegno con un nostro Consulente del Credito e Assicurativo.

Hai inserito correttamente tutti i dati necessari e a breve riceverai una e-mail con un link da convalidare per inviare i tuoi dati.
Affiliato
Servizi Per L'Impresa Srl
Via Raffaello Sanzio, 7/B 10036 Settimo Torinese (TO)

Il nostro staff


  • Pietro Borracci
    Affiliato

  • Paolo Marzola
    Collaboratore

  • Gloria Apruzzese
    Coordinatrice
Via Raffaello Sanzio, 7/B 10036 Settimo Torinese (TO)
Zona: Settimo Torinese-San Mauro Torinese-Leinì-Volpiano-Brandizzo-Gassino-Castiglione
Mostra su mappa
Orari: lunedì al venerdì 08:30 12:30 - 14:30 19:30 sabato 8:30 - 12:30
Affiliato
Servizi Per L'Impresa Srl
Via Raffaello Sanzio, 7/B 10036 Settimo Torinese (TO)

2026 Tecnocasa Franchising S.p.A. - P. IVA 08365160152 - Via Monte Bianco 60/A 20089 Rozzano (MI). Ogni agenzia ha un proprio titolare ed è autonoma. Privacy policy | Policy utilizzo | Cookie policy